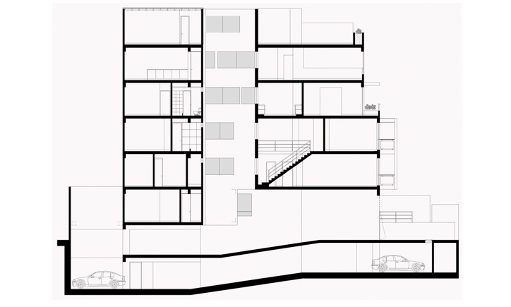
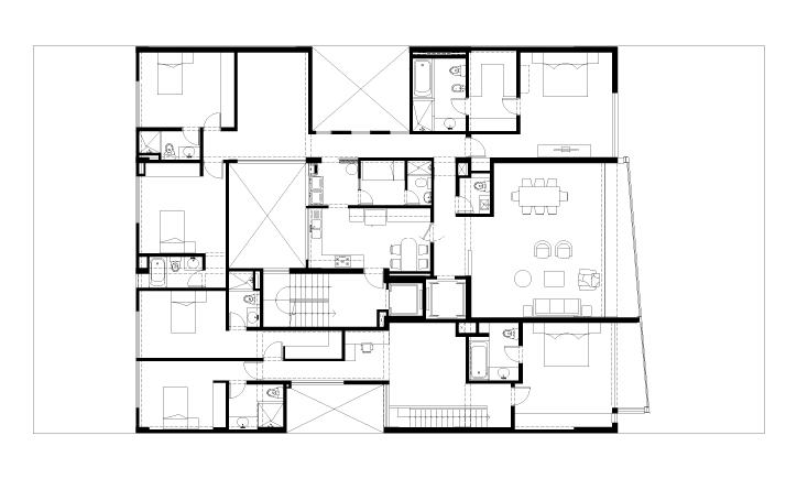
Edificio Nicolás de Rivera

Proyecto Arquitectura

“Propuesta”

...

...


  • ubicación

    San Isidro, Lima Perú

  • área

    2,305 m²

  • estado

    Construído

  • año

    2008

  • cliente

    Becamm Inmobiliaria

Formulario de contacto


¿En qué podemos ayudarte?

Escríbenos mediante el formulario de contactos eligiendo el "Asunto" del mensaje.

Los mensajes enviados llegarán a la administración de Vértice Arquitectos y derivados a los responsables según el asunto del correo.